来源:本站 阅读次数:6572 返回列表页
景墙自成风景,不同元素的组合,不同材质的搭配,不同色彩的运用,甚至是不同科技的应用,能让景墙给人不一样的体验。这其中,最让人眼前一亮的要属一种会随风舞动的墙面。


01
风动幕墙的概念
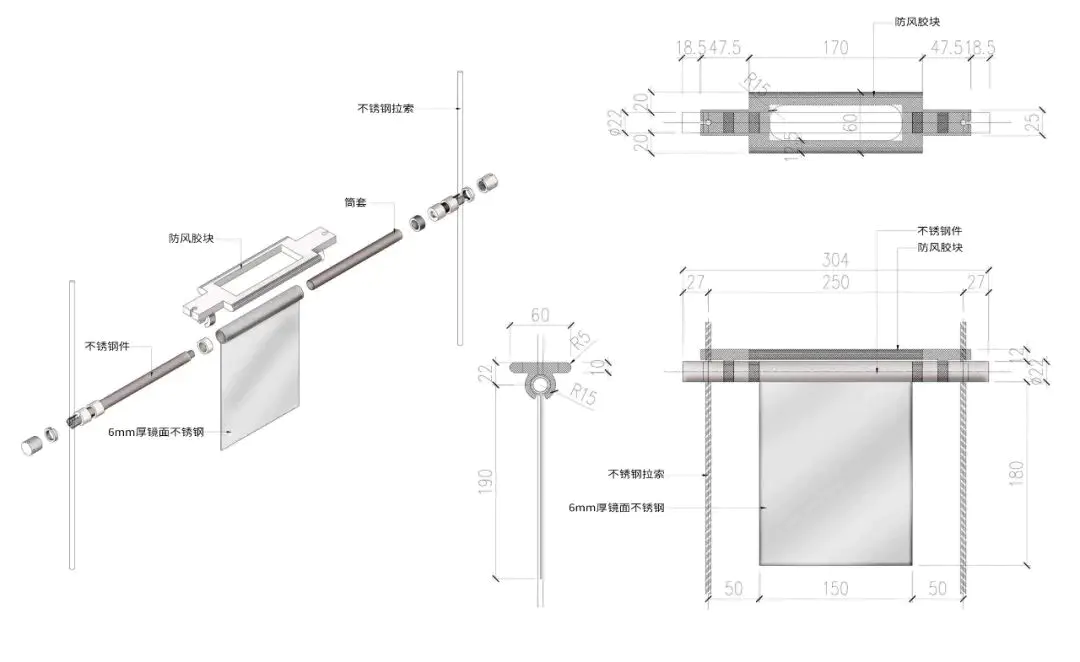
风动幕墙也叫风铃幕墙,其原理简单来说就是利用动力学的风力来模拟风吹的效果。其结构较为简单,通常用不锈钢拉索把金属风动片串链起来,固定住风动片的单边,限制仅在一个方向能移动。让墙面在空中随风飘舞,轻盈灵动、自然流畅。


02
风动景墙的结构
我们小编们收集整理了常见风动幕墙,总结下来风动墙的的飘动方向大致可以分为两种,水平方向及旋转方向。
(1)水平方向: 采用金属拉索搭建结构,控制风动片水平方向飘动。




90mm~150mm*120mm~180mm*0.6mm~0.8mm,中间构造间隔30mm~50mm,转角处南侧整面布满,西侧调整位置,保证边侧风动片各自不受影响。


(2)旋转方向:使用金属柱搭建固定结构。风动片串接后固定在金属柱上, 随着风吹绕金属柱旋转。


B. 搭建安装结构
本节主要指风动片的排列组合方式,既有重叠排列,也有间隔一定的间隙排列。不同的排列组合,对视觉营造、空间氛围,甚至是听觉感触上都有不同的效果。
(1)重叠式:风动片与风动片之间的排列在竖直向或水平向有重叠。当云起风动的时候,除了看到风动墙表面肌力的流动变化,他们之间的相互碰撞击打发出的清脆声音,在视觉和听觉并驾齐驱丰富游览的体验感。



(2)不重叠式:风动片排列留缝隙,风动墙整体呈现轻盈质感,风吹流动效果明显。



您有新的消息 1